* Поиск по сайту Вверх Вниз



Начать новую тему Ответить на тему  [ Сообщений: 90 ]  На страницу Пред.  1, 2, 3, 4, 5, 6  След.
Автор Сообщение
 Заголовок сообщения: Re: 1ZZ-FE. На горячую глохнет во время движения.
СообщениеДобавлено: 09 апр 2018, 12:00 
Не в сети
местный
Аватара пользователя

Зарегистрирован: 27 мар 2011, 13:42
Сообщения: 3978
Тем: 76
Откуда: г. Братск, Иркутская область
Блог: Посмотреть блог (2)
Машина: др. Toyota
Репутация: 2867
Рекламные ссылки. Показывается только незарегистрированным пользователям


VERVIL писал(а):
Может проблема в генераторе? Если горит значок аккумулятора

Значок загорается, только когда глохнет двигатель. Во время езды ни чек, ни "аккумулятор" не горят.
-----------------------------
Съездил к установщикам. Стандартно блокировка, сказали, ставится на стартер. То есть, если сесть в машину, поставить ее на охрану и попробовать завести, она не заведется и сработает сигнализация. Проверили, так и произошло (установщик сам сел и продемонстрировал).
По приезду домой посидел, не глуша, подождал, благополучно заглох. Скрепка по-прежнему ничего не показывает. Двигатель теперь глохнет сразу с 750 оборотов (раньше после 500).
Есть какие-нибудь мысли? :(

_________________
Toyota Vista Ardeo, 1ZZ-FE, 10.1998 г., multivision, обвес. Была
Toyota Vista Ardeo, 1ZZ-FE, 12.2000 г., диван, multivision, печка Ipsum, ксенон. Была
Toyota Camry, 2AZ-FE, 03.2008, R4. Была
Toyota Allion, 1ZZ-FE, 01.2004 - на drive2


Вернуться к началу
 Профиль  
Ответить на тему 

 Заголовок сообщения: Re: 1ZZ-FE. На горячую глохнет во время движения.
СообщениеДобавлено: 09 апр 2018, 16:03 
Не в сети
Суровый Модератор
Аватара пользователя

Зарегистрирован: 18 июл 2011, 16:15
Сообщения: 3138
Тем: 45
Откуда: Новосибирск
Машина: Toyota Vista Ardeo
О машине: SV55
Репутация: 3439
Тогда смотреть когда глохнет есть ли искра если есть смотреть в сторону насоса возможно он виноват, нужна тогда диагностика а так это гадание


Вернуться к началу
 Профиль Отправить email  
Ответить на тему 
 Заголовок сообщения: Re: 1ZZ-FE. На горячую глохнет во время движения.
СообщениеДобавлено: 09 апр 2018, 21:19 
Не в сети
местный
Аватара пользователя

Зарегистрирован: 27 мар 2011, 13:42
Сообщения: 3978
Тем: 76
Откуда: г. Братск, Иркутская область
Блог: Посмотреть блог (2)
Машина: др. Toyota
Репутация: 2867
Александр171 писал(а):
Тогда смотреть когда глохнет есть ли искра...

А как это можно проверить? Я на четверг к автоэлектрикам записался. Они могут посмотреть? Или надо к другим специалистам обращаться (по ремонту двс, например)?
Ситуация для неспециалиста хуже некуда. Сейчас начнутся затратные, но бестолковые катания по сервисам(((
Сань, а где находится тот датчик температуры мозгов, про который ты говорил?

_________________
Toyota Vista Ardeo, 1ZZ-FE, 10.1998 г., multivision, обвес. Была
Toyota Vista Ardeo, 1ZZ-FE, 12.2000 г., диван, multivision, печка Ipsum, ксенон. Была
Toyota Camry, 2AZ-FE, 03.2008, R4. Была
Toyota Allion, 1ZZ-FE, 01.2004 - на drive2


Вернуться к началу
 Профиль  
Ответить на тему 
 Заголовок сообщения: Re: 1ZZ-FE. На горячую глохнет во время движения.
СообщениеДобавлено: 09 апр 2018, 21:32 
Не в сети
Суровый Модератор
Аватара пользователя

Зарегистрирован: 18 июл 2011, 16:15
Сообщения: 3138
Тем: 45
Откуда: Новосибирск
Машина: Toyota Vista Ardeo
О машине: SV55
Репутация: 3439
Езжай к электрикам Вот датчик Он номер Toyota89422-35010 Датчик температуры жидкости двухконтактный Изображение

Добавлено спустя 7 минут 37 секунд:
vlad-&-slav писал(а):
VERVIL писал(а):
Может проблема в генераторе? Если горит значок аккумулятора


По приезду домой посидел, не глуша, подождал, благополучно заглох. Скрепка по-прежнему ничего не показывает. Двигатель теперь глохнет сразу с 750 оборотов (раньше после 500).
Есть какие-нибудь мысли? :(


Я еще бы проверил сколько давит насос в баке может у него такой признак подыхать минимальное давление 3.5 -4.5 чем больше 4 атмосфер тем лучше.


Вернуться к началу
 Профиль Отправить email  
Ответить на тему 
 Заголовок сообщения: Re: 1ZZ-FE. На горячую глохнет во время движения.
СообщениеДобавлено: 09 апр 2018, 21:41 
Не в сети
местный
Аватара пользователя

Зарегистрирован: 27 мар 2011, 13:42
Сообщения: 3978
Тем: 76
Откуда: г. Братск, Иркутская область
Блог: Посмотреть блог (2)
Машина: др. Toyota
Репутация: 2867
Спасибо, Саня. Ты мне опять подарил надежду)
В четверг отпишусь, что да как.

_________________
Toyota Vista Ardeo, 1ZZ-FE, 10.1998 г., multivision, обвес. Была
Toyota Vista Ardeo, 1ZZ-FE, 12.2000 г., диван, multivision, печка Ipsum, ксенон. Была
Toyota Camry, 2AZ-FE, 03.2008, R4. Была
Toyota Allion, 1ZZ-FE, 01.2004 - на drive2


Вернуться к началу
 Профиль  
Ответить на тему 
 Заголовок сообщения: Re: 1ZZ-FE. На горячую глохнет во время движения.
СообщениеДобавлено: 09 апр 2018, 21:42 
Не в сети
Суровый Модератор
Аватара пользователя

Зарегистрирован: 18 июл 2011, 16:15
Сообщения: 3138
Тем: 45
Откуда: Новосибирск
Машина: Toyota Vista Ardeo
О машине: SV55
Репутация: 3439
Да не за что)


Вернуться к началу
 Профиль Отправить email  
Ответить на тему 
 Заголовок сообщения: Re: 1ZZ-FE. На горячую глохнет во время движения.
СообщениеДобавлено: 09 апр 2018, 21:46 
Не в сети
местный
Аватара пользователя

Зарегистрирован: 27 мар 2011, 13:42
Сообщения: 3978
Тем: 76
Откуда: г. Братск, Иркутская область
Блог: Посмотреть блог (2)
Машина: др. Toyota
Репутация: 2867
Александр171 писал(а):
Я еще бы проверил сколько давит насос в баке может у него такой признак подыхать...

Странно, что он желает подыхать при одних и тех же условиях, а не когда попало. Имею ввиду, что двигатель глохнет только тогда, когда прогревается до рабочей температуры. Хотя, конечно, всё может быть.

_________________
Toyota Vista Ardeo, 1ZZ-FE, 10.1998 г., multivision, обвес. Была
Toyota Vista Ardeo, 1ZZ-FE, 12.2000 г., диван, multivision, печка Ipsum, ксенон. Была
Toyota Camry, 2AZ-FE, 03.2008, R4. Была
Toyota Allion, 1ZZ-FE, 01.2004 - на drive2


Вернуться к началу
 Профиль  
Ответить на тему 
 Заголовок сообщения: Re: 1ZZ-FE. На горячую глохнет во время движения.
СообщениеДобавлено: 09 апр 2018, 21:55 
Не в сети
Суровый Модератор
Аватара пользователя

Зарегистрирован: 18 июл 2011, 16:15
Сообщения: 3138
Тем: 45
Откуда: Новосибирск
Машина: Toyota Vista Ardeo
О машине: SV55
Репутация: 3439
Просто сейчас два момента на горячем двигателе либо исчезает искра это катушки или свечи. Или топливо не поступает а это насос.


Вернуться к началу
 Профиль Отправить email  
Ответить на тему 
 Заголовок сообщения: Re: 1ZZ-FE. На горячую глохнет во время движения.
СообщениеДобавлено: 09 апр 2018, 22:05 
Не в сети
местный
Аватара пользователя

Зарегистрирован: 27 мар 2011, 13:42
Сообщения: 3978
Тем: 76
Откуда: г. Братск, Иркутская область
Блог: Посмотреть блог (2)
Машина: др. Toyota
Репутация: 2867
Свечи новые. В катушки заглядывал, вроде все нормально.
Кстати, а какое-нибудь из этих реле может глючить (по той же аналогии, что и предполагаемое реле блокировки)?
Вложение:
Моторный отсек.jpg
Моторный отсек.jpg [ 206.71 КБ | Просмотров: 3911 ]

_________________
Toyota Vista Ardeo, 1ZZ-FE, 10.1998 г., multivision, обвес. Была
Toyota Vista Ardeo, 1ZZ-FE, 12.2000 г., диван, multivision, печка Ipsum, ксенон. Была
Toyota Camry, 2AZ-FE, 03.2008, R4. Была
Toyota Allion, 1ZZ-FE, 01.2004 - на drive2


Вернуться к началу
 Профиль  
Ответить на тему 
 Заголовок сообщения: Re: 1ZZ-FE. На горячую глохнет во время движения.
СообщениеДобавлено: 09 апр 2018, 22:07 
Не в сети
Суровый Модератор
Аватара пользователя

Зарегистрирован: 18 июл 2011, 16:15
Сообщения: 3138
Тем: 45
Откуда: Новосибирск
Машина: Toyota Vista Ardeo
О машине: SV55
Репутация: 3439
Вот тут ниже там есть как перемкнуть контакт и посмотреть это реле топлевнного насоса http://www.vistaclub.ru/forum/viewtopic.php?t=1012488&start=0&hilit=%D0%BD%D0%B5+%D1%80%D0%B0%D0%B1%D0%BE%D1%82%D0%B0%D0%B5%D1%82+%D0%BD%D0%B0%D1%81%D0%BE%D1%81


Вернуться к началу
 Профиль Отправить email  
Ответить на тему 
 Заголовок сообщения: Re: 1ZZ-FE. На горячую глохнет во время движения.
СообщениеДобавлено: 09 апр 2018, 22:28 
Не в сети
местный
Аватара пользователя

Зарегистрирован: 27 мар 2011, 13:42
Сообщения: 3978
Тем: 76
Откуда: г. Братск, Иркутская область
Блог: Посмотреть блог (2)
Машина: др. Toyota
Репутация: 2867
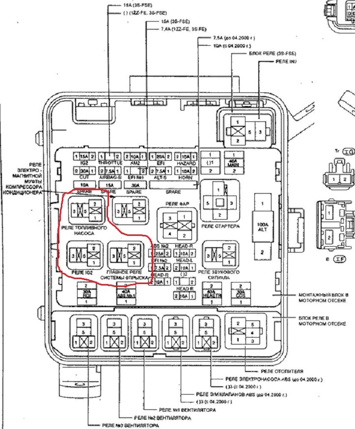
То есть можно вставить скрепку в эти два контакта, завести и проверять, заглохнет или нет?
Вложение:
реле.jpg
реле.jpg [ 82.31 КБ | Просмотров: 3904 ]

Еще бы знать, как реле впрыска проверить. Надо глянуть, может быть в мануале есть.

_________________
Toyota Vista Ardeo, 1ZZ-FE, 10.1998 г., multivision, обвес. Была
Toyota Vista Ardeo, 1ZZ-FE, 12.2000 г., диван, multivision, печка Ipsum, ксенон. Была
Toyota Camry, 2AZ-FE, 03.2008, R4. Была
Toyota Allion, 1ZZ-FE, 01.2004 - на drive2


Вернуться к началу
 Профиль  
Ответить на тему 
 Заголовок сообщения: Re: 1ZZ-FE. На горячую глохнет во время движения.
СообщениеДобавлено: 09 апр 2018, 22:43 
Не в сети
Суровый Модератор
Аватара пользователя

Зарегистрирован: 18 июл 2011, 16:15
Сообщения: 3138
Тем: 45
Откуда: Новосибирск
Машина: Toyota Vista Ardeo
О машине: SV55
Репутация: 3439
да совершенно верно


Вернуться к началу
 Профиль Отправить email  
Ответить на тему 
 Заголовок сообщения: Re: 1ZZ-FE. На горячую глохнет во время движения.
СообщениеДобавлено: 10 апр 2018, 14:28 
Не в сети
Любитель
Любитель

Зарегистрирован: 10 авг 2013, 23:45
Сообщения: 60
Тем: 1
Откуда: р.п Голышманово Тюм.обл.
Машина: Toyota Camry
О машине: MCV20. 1MZ-FE. Европейка. 98год.
Репутация: 179
У меня было такое только наоборот, на холодную дергалась а когда прогревалась нормально ехала, был сломан(до меня) клапан VVT-I . сканер по нему ни чего не показывал т.к цепь клапана была целая.


Вернуться к началу
 Профиль Отправить email  
Ответить на тему 
 Заголовок сообщения: Re: 1ZZ-FE. На горячую глохнет во время движения.
СообщениеДобавлено: 10 апр 2018, 15:31 
Не в сети
местный
Аватара пользователя

Зарегистрирован: 27 мар 2011, 13:42
Сообщения: 3978
Тем: 76
Откуда: г. Братск, Иркутская область
Блог: Посмотреть блог (2)
Машина: др. Toyota
Репутация: 2867
Ссылка, на всякий случай.
Я в работе двигателя, клапана vvt-i и т.д. не разбираюсь. Может кто из форумчан глянет да скажет, может этот клапан быть причиной проблемы или нет?

_________________
Toyota Vista Ardeo, 1ZZ-FE, 10.1998 г., multivision, обвес. Была
Toyota Vista Ardeo, 1ZZ-FE, 12.2000 г., диван, multivision, печка Ipsum, ксенон. Была
Toyota Camry, 2AZ-FE, 03.2008, R4. Была
Toyota Allion, 1ZZ-FE, 01.2004 - на drive2


Вернуться к началу
 Профиль  
Ответить на тему 
 Заголовок сообщения: Re: 1ZZ-FE. На горячую глохнет во время движения.
СообщениеДобавлено: 10 апр 2018, 17:08 
Не в сети
Любитель
Любитель

Зарегистрирован: 10 авг 2013, 23:45
Сообщения: 60
Тем: 1
Откуда: р.п Голышманово Тюм.обл.
Машина: Toyota Camry
О машине: MCV20. 1MZ-FE. Европейка. 98год.
Репутация: 179
Его проверить не сложно, там болтик один его держит, торцовый ключ надо на 10, проверить шток ходит или заклинил (от маслококса), только не отверткой, чтоб не повредить. Ну и фильтр клапана тоже почистить заодно, он там рядом.


Вернуться к началу
 Профиль Отправить email  
Ответить на тему 

Показать сообщения за:  Поле сортировки  
Начать новую тему Ответить на тему

 [ Сообщений: 90 ]  На страницу Пред.  1, 2, 3, 4, 5, 6  След.





* Поиск по сайту Вверх Вниз

Кто сейчас на конференции

Сейчас этот форум просматривают: нет зарегистрированных пользователей и гости: 1


Вы не можете начинать темы
Вы не можете отвечать на сообщения
Вы не можете редактировать свои сообщения
Вы не можете удалять свои сообщения
Вы не можете добавлять вложения

Найти:
Перейти:  
Текущее время: 26 апр 2026, 23:02
Часовой пояс: UTC + 7 часов
Powered by phpbb. (c) VistaClub.ru.    * Статистика